Zona Berango
m²
hab.
Planta
Descripción
En Bilkio estamos iniciando el desarrollo del proyecto de construcción de una casa bifamiliar en el barrio residencial de Kurtze, Berango.
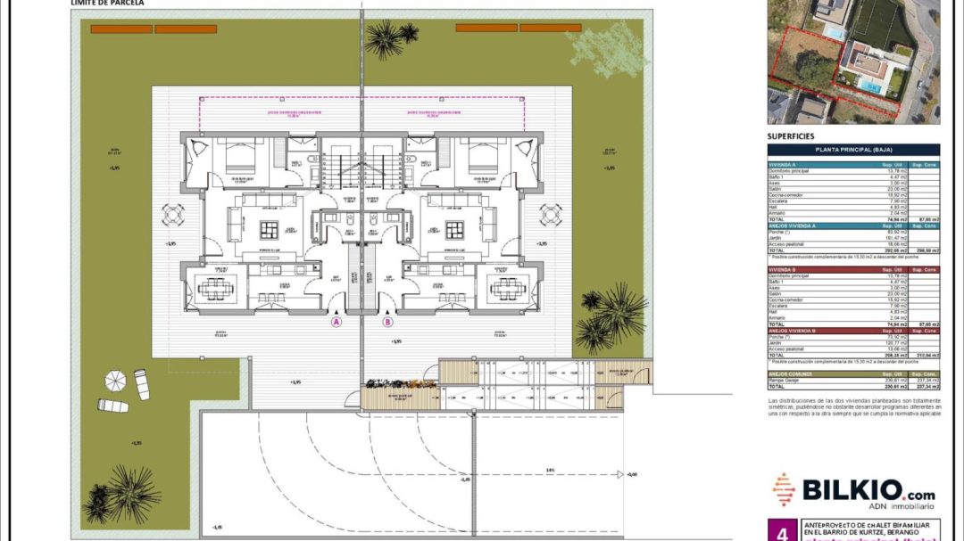
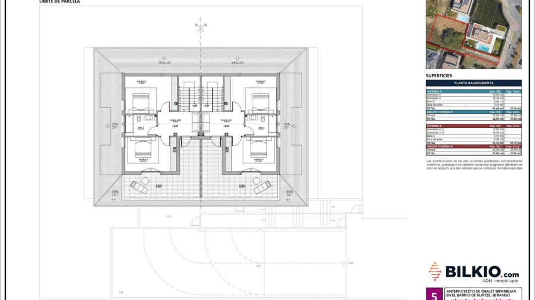
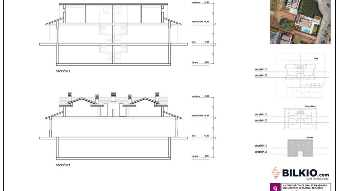
Se trata de una parcela de 850 m2 donde se van a construir dos viviendas adosadas, una de las cuales pertenecerá al propietario de la parcela, y la otra será vendida a un tercero.
La parcela se ubica en una zona muy tranquila, con gran vegetación y muy bien situada respecto a servicios, transportes y próxima a la playa.
El proyecto de estilo tradicional pero con rasgos contemporáneo, desarrolla dos viviendas que dispondrán de garaje, 3 habitaciones, 3 baños, amplio salón, porche, jardín y terraza.
Características
Eficiencia energética
Edificio
Equipamiento
En proyecto
|
Ref. Kurtze
Contáctanos
























































































































































