Zona San Miguel de Basauri
hab.
Planta

Descripción

Entregamos la vivienda objeto de transformación de un local comercial de 80 m2 situado en los bajos de un edificio en el barrio de San Miguel de Basauri.

El proyecto, redactado por los arquitectos de BILKIO, se ha desarrollado de la mano de la clienta, buscando la mejor distribución, con el más optimo aprovechamiento de los espacios, acorde a las calidades y acabados elegidos.

Se trata de una vivienda en planta baja, con dos amplias habitaciones, un gran salón con la cocina incorporada y un baño. La vivienda es totalmente exterior, por lo que dispone de una gran iluminación natural.

En este proyecto se ha priorizado el ahorro energético, por lo que la vivienda está fuertemente asilada en todo su perímetro, se han colocado unas ventanas de gran eficiencia energética y las instalaciones son altamente eficientes.

La duración estimada de la obra ha sido de 5 meses, bajo la supervisión de los arquitectos de BILKIO

Características

Eficiencia energética

Edificio

Equipamiento

Terminado

|

Ref. San Miguel

Contáctanos

¿Tienes un terreno o solar?

¡Podemos transformarlo en un nuevo proyecto!
Cuéntanos un poco más sobre este suelo y analizaremos su potencial y viabilidad sin compromiso.
Nuestro equipo te contactará para proponerte una posible inversión. 

¿Eres propietario de un edificio?

Podemos rehabilitarlo o transformarlo. Cuéntanos un poco más sobre esta propiedad  y analizaremos su potencial y viabilidad sin compromiso.
Nuestro equipo te contactará para proponerte una posible inversión. 

¿Tienes un local u oficina sin uso?

Cuéntanos un poco más sobre tu LOCAL COMERCIAL U OFICINA y analizaremos su potencial y viabilidad sin compromiso.
Nuestro equipo te contactará para proponerte una posible inversión.

¿Tienes una vivienda con potencial?

Cuéntanos un poco más sobre tu VIVIENDA y analizaremos su potencial y viabilidad sin compromiso.
Nuestro equipo te contactará para proponerte una posible inversión.

¡Una reforma a tu medida, sin límites!

Tú decides, nosotros lo hacemos realidad. Cuéntanos tu idea y diseñaremos un proyecto que se adapte a tu estilo, necesidades y presupuesto. ¡Déjanos tus datos y empecemos

Tu casa, como siempre la soñaste

Con nuestra Reforma Premium, combinamos diseño exclusivo, materiales de primera y máxima eficiencia. Cuéntanos tu proyecto y te ayudamos a hacerlo realidad.

¡Tu casa empieza a transformarse!

Cada gran reforma empieza con un primer paso.
Rellena el formulario y te asesoraremos para que tu hogar luzca como nuevo.

¡Reforma Básica EN MARCHA!

Ya estás un paso más cerca de darle un nuevo aire a tu hogar. Solicita información y te contactaremos antes de que el primer ladrillo toque el suelo.

Promoción residencial en Berriz

Encargo

Un promotor privado encarga la gestión de una unidad de uso residencial cuyo objetivo es desarrollar un ámbito de 126 viviendas concertadas en un enclave único.

Análisis y desarrollo

Bilkio gestiona urbanísticamente el ámbito y realiza un prediseño de estilo arquitectónico  y coordina a los equipos técnicos intervinientes en la redacción de los Proyectos Básicos y de Ejecución, así como la supervisión de la obra. Dirige y supervisa la gestión de la venta de los inmuebles resultantes.

Resultado

Una zona residencial de gran valor arquitectónico con una gran urbanización asociada y espacios libres de relación dentro de un entorno natural envidiable.

PROMOCIÓN residencial en Basauri

Encargo

Un grupo inversor realiza el encargo de gestionar urbanísticamente un sector de gran superficie donde se proyecta construir, en fases progresivas, un total de 243 viviendas y una amplia superficie de urbanización de zonas verdes y de esparcimiento e, incluso, un frontón municipal.

Análisis y desarrollo

El ámbito clasificado como suelo urbanizable requería de una importante gestión urbanística previa con el fin de viabilizar su desarrollo. Bilkio coordinó y gestionó el diseño y la redacción del Plan Parcial, Proyecto de Urbanización, Proyecto de Reparcelación y los proyectos específicos de los bloques edificatorios.

Resultado

Una extensa zona residencial con gran urbanización asociada y espacios libres, una gran extensión de zonas verdes y zonas de juego y recreativas.

Promoción residencial en Barakaldo

Encargo

Un grupo promotor encarga el desarrollo urbanístico desde origen de una promoción inmobiliaria donde se proyectaba construir 194 viviendas libres y 90 viviendas de VPO.

Análisis y desarrollo

Bilkio asume la gestión y coordina los equipos técnicos intervinientes en la redacción de los Proyectos Básicos y de Ejecución, así como la supervisión de la obra. Programa, dirige y supervisa la gestión de la venta de los inmuebles resultantes.

Resultado

Gran operación inmobiliaria que viene a consolidad un ámbito importante del municipio con interesantes espacios públicos y lúdicos y un gran volumen de viviendas de diferentes tipologías.

Promoción residencial en Balmaseda

Encargo

Un grupo inversor realiza el encargo de gestionar el desarrollo urbanístico de una promoción inmobiliaria donde se proyecta construir 128 viviendas libres y 32 viviendas VPO.

Análisis y desarrollo

Bilkio coordina y supervisa la redacción del Proyecto de Compensación, del Proyecto de Urbanización y del Estudio de Detalle. Tramita con URA y con ferrocarriles los permisos necesarios para los que desarrolla informes hidráulicos y de implantación y gestiona las licencias urbanísticas con el Ayuntamiento.

Resultado

Una magnífica urbanización con viviendas de gran calidad, en un entorno envidiable, rodeada de un paraje natural incomparable.

Cambio de uso de oficinas a viviendas en Alameda Urquijo

Encargo

La empresa propietaria de unas oficinas de una empresa farmacéutica situadas en el centro de Bilbao, tras años intentando sin éxito su comercialización, nos realiza el encargo de su gestión y venta a Bilkio.

Análisis y desarrollo

Tras la realización de un estudio de mercado y de un análisis de viabilidad urbanístico, en Bilkio concluimos que la manera más rentable de vender las oficinas es previo cambio de uso a viviendas. Para esto redactamos el proyecto técnico y una vez obtenida la licencia, gestionados y dirigimos la obra de transformación, resultando 8 viviendas personalizadas al gusto del cliente final.

Resultado

Las viviendas resultantes se venden de forma inmediata, suponiendo un producto exclusivo con gran demanda, lo que permite a la propiedad comercializar su inmueble en tiempo récord por un valor muy superior al que se hubiera obtenido tras la venta en su uso

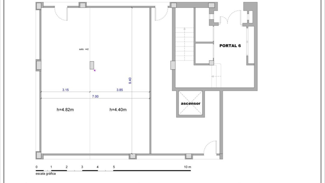
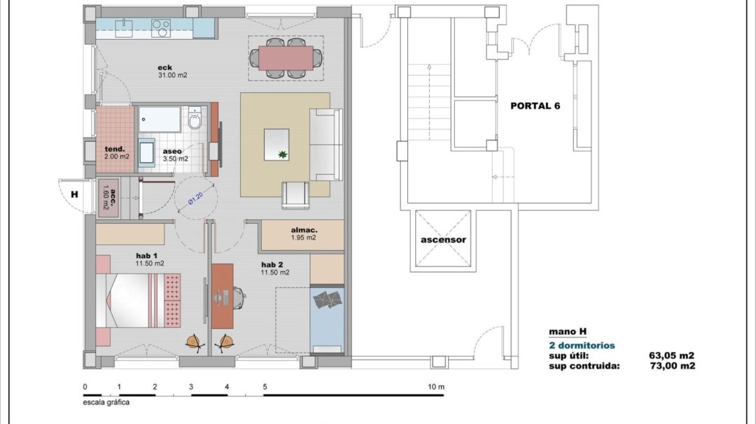
Cambio de uso de locales a viviendas en San Miguel de Basauri

Encargo

El constructor de una promoción residencial de 285 viviendas construidas hace más de 20 años en el barrio de San Miguel de Basauri, se dirige a Bilkio ya que seguía disponiendo de una superficie de 700 m2 de locales comerciales vacíos sin haberlos podido vender, ni alquilar desde su origen, dada la escasa demanda existente.

Análisis y desarrollo

En Bilkio analizamos el mercado inmobiliario de la zona y comprobamos que era muy poco viable y dificultosa la venta de dichos locales en el estado original, y buscamos una alternativa estudiando  la rentabilidad de la inversión en dichos locales previa transformación en 10 viviendas, la cuales dada la normativa municipal, debían ser viviendas tasadas locales.
Realizamos una oferta por la compra de los locales y realizamos todas las gestiones necesarias para su transformación.

Resultado

La operación fue un éxito, las viviendas se vendieron al precio establecido y obtuvimos la rentabilidad esperada y el retorno de la inversión en muy poco tiempo.

.

Cambio de uso de guardería a vivienda en Blas de Otero

Encargo

Se trata de una operación de inversión de Bilkio donde se busca rentabilizar un inmueble transformando su uso de guardería infantil, a vivienda

Análisis y desarrollo

El inmueble se encontraba en muy mal estado de conservación, y su distribución no era adecuada para su uso como vivienda. Analizamos la rentabilidad de la operación y adquirimos el inmueble, tras una importante negociación con la propiedad ya que el precio de salida del inmueble no hacía viable la inversión.

Redactamos el proyecto de cambio de uso y desarrollamos la obra, previo derribo total del interior del inmueble. Realizamos una distribución donde se aprovechaba muy bien la escasa superficie de la vivienda obteniendo un gran aprovechamiento del espacio disponible.

Resultado

Conseguimos como resultado de la operación, una espectacular vivienda la cual se vendió muy rápidamente por encima del precio que habíamos estimado a origen consiguiendo una rentabilidad superior a la prevista.

 

Segregación de inmueble y venta en Pío Baroja

Encargo

El propietario de una exclusiva vivienda con vistas a la ría y al Ayuntamiento de la villa bilbaína, acude a Bilkio para cambiar su residencia por otra de menor tamaño.

Análisis y desarrollo

El propietario ni desea ni requiere cambiar de vivienda, sino reducir y reformar la que posee. Bilkio propone segregar su vivienda manteniendo su residencia y vendiendo la resultante a un tercero.

Resultado

Gracias a la creatividad de Bilkio, el cliente continuó en una vivienda adaptada y renovada, vendiendo la parte restante y obteniendo un beneficio económico.

Segregación de inmueble y venta en Marqués del Puerto

Encargo

Nos llega a Bilkio la oferta de compra de una vivienda de 180 m2 en un edifico señorial en el centro de Bilbao. La vivienda llevaba a la venta mucho tiempo dado su alto precio y el deteriorado estado de conservación y la propiedad se negaba a negociar su precio

Análisis y desarrollo

En Bilkio evaluamos distintos escenarios de inversión. La opción de adquirir el inmueble para reformarlo y revenderlo no resultaba rentable. En cambio, la segregación/división en dos viviendas más pequeñas, junto con su reforma, permitía comercializarlas a precio de mercado. Por ello, adquirimos la vivienda, desarrollamos los proyectos y gestionamos los trámites administrativos necesarios para viabilizar la segregación. Posteriormente, ejecutamos y dirigimos las obras, y finalizamos el proceso legalizando las dos nuevas viviendas.

Resultado

De la operación resultaron 2 exclusivas viviendas con programas muy diferentes. Su comercialización fue un éxito , consiguiendo una muy buena rentabilidad en un corto espacio de tiempo.

Segregación de inmueble y venta en Alameda Urquijo

Encargo

Ante las dificultades que el tamaño y el estado físico de la vivienda suponían para la comercialización, la propiedad confía en Bilkio el encargo de la venta

Análisis y desarrollo

Bilkio analiza las debilidades y las fortalezas del inmueble, en base a las cuales plantea la segregación como procedimiento de la comercialización, obteniendo como resultado 2 viviendas cuya obra es realizada acorde a las preferencias del cliente final.

Resultado

Tanto el propietario como los clientes compradores resultan totalmente satisfechos.

Inversión en una vivienda en Ibáñez de Bilbao

Encargo

Nos proponen a Bilkio la adquisición de un inmueble muy atractivo y de gran tamaño situado en el centro de Bilbao, en un edificio señorial.

Análisis y desarrollo

Se descartan tras su estudio, diferentes escenarios de inversión; la segregación no era viable urbanísticamente y la reforma integral no resultaba rentable ya que disparaba mucho el precio final del inmueble. Se analiza un proyecto de reforma estratégica donde se mantienen elementos originales de la vivienda y se renueva solo parte, consiguiendo un aspecto totalmente renovado reduciendo mucho el coste de la obra. Tras una buena negociación del precio del inmueble, se adquiere y se realiza la obra

Resultado

El resultado es una vivienda que conserva el encanto original, pero con una distribución optimizada y acabados renovados, lo que la hace más funcional y atractiva. Se vende a un excelente precio en el mercado, logrando la rentabilidad esperada.

Cambio de uso de oficina a vivienda en Ribera

Encargo

Se trata de una operación de inversión de Bilkio donde se busca rentabilizar un inmueble transformando su uso de oficina a vivienda

Análisis y desarrollo

Realizamos el estudio de viabilidad técnico-económica de la operación, donde determinamos la rentabilidad resultante y decidimos adquirir el inmueble. Diseñamos y tramitamos el proyecto de cambio de uso a vivienda, tras el cual realizamos la obra de reforma, una obra con una distribución óptima, repleta de detalles de diseño, con acabados muy cuidados. 

Resultado

La vivienda resultante de la operación de cambio de uso se vende en el mercado inmobiliario por el precio esperado, obteniendo una importante revalorización del inmueble y alcanzando la rentabilidad prevista.